Move In Ready

216 Jacob Street, Tavistock | Lot 04 | The Oxford


Description

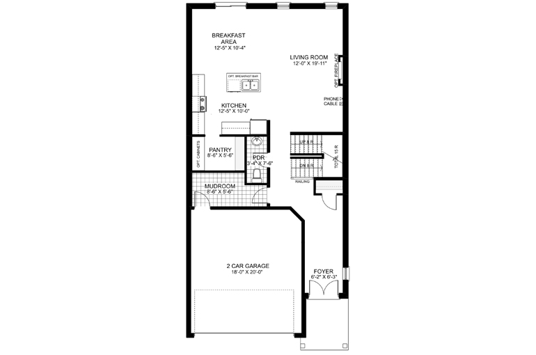
APPARENTLY, this 2209 sq ft average two storey home is NOT average as it is our most popular model.

Property Details
Options / Upgrades In This Home
Lot Size
Parking Type Garage - Attached
Bedroom Count
Roof Type Asphalt Shingles
  • 2209 sq ft
  • 4 bed
  • 2.5 bath

SOLD